Eckdaten
Wildschönau
727 m²
786 m²
8
4
ID:
RG-0002325
Auf Anfrage
Details
- Heizung: Zentral (Pellet)
- Stellplätze: 7
- Kamin
Heizung: Zentral (Pellet) /
Stellplätze: 7 /
Kamin /
Kontakt
Roman Gobec
Tel: +43 676 726 26 76
Franz Gobec
Tel: +43 676 704 71 20
Markus Gobec
Tel: +43 676 721 36 60
Beschreibung
Die Wildschönau ist eines der schönsten Hochtäler Tirols und bietet neben imposanten Bergketten auch sanfte Hügel und einen sensationellen Ausblick in ruhiger und sonniger Lage.
Imposant thront die Liegenschaft auf einem Hügel, umgeben von Landwirtschaft, eingebettet in die Kitzbüheler Alpen, aber trotzdem nahe zur Deutschen Grenze.
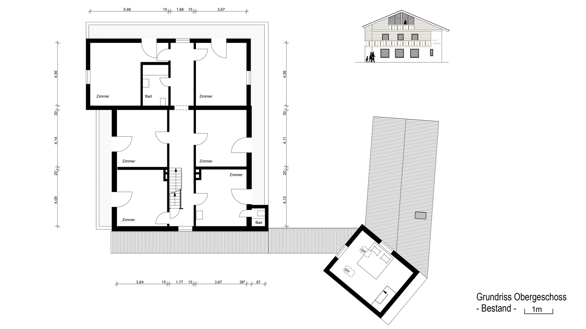
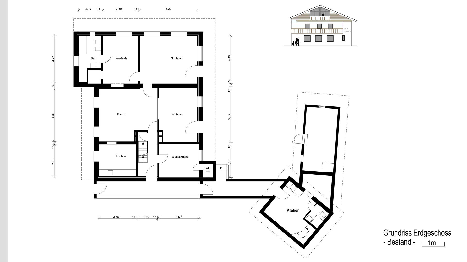
Das angebotene Objekt bietet dem zukünftigen Eigentümer eine vielseitige Nutzung und einige versteckte Details, die so kaum ein zweites Mal zu finden sind.
- Die unterirdische Schutzanlage ist für ca. 40 bis 50 Menschen geeignet, inklusive:
- 15 Schlaf-/Privaträume
- Weitere Aufenthalts, Lager und Betriebsräume
- Komfortable Ausstattung mit Luftfilteranlage, eigenem Strom-Generator, eigene Frischwasser-Quelle
- Tiefgarage mit bis zu 7 KfZ-Abstellplätze
- Der Erwerb einer Betriebs-GmbH, in welcher die Immobilie beinhaltet ist, ist möglich (Gästehaus, Bewirtschaftung).
Die derzeitige Planungsstudie, welche sich gerade in der Genehmigungsphase befindet, sieht einen Umbau und eine teilweise Erweiterung des Bestandes vor.
Vorgesehen sind drei luxuriöse Apartments und Seminarräumlichkeiten im Dachgeschoss. Die geschaffenen Räumlichkeiten bieten obendrein die Möglichkeit für eine gewerbliche Vermietung. Die Planung und in absehbarer Zeit die Baugenehmigung sind Bestandteil des Verkaufes.
Das Haus wird über eine hocheffiziente Pelletheizung beheizt und verfügt weiters über eine eigene Quelle am Grundstück.
Das Haus ist mit mehreren besonderen Features ausgestattet und unterhalb der Liegenschaft befindet sich eine einzigartige Sicherheitsanlage für bis zu 40 Personen, zu welcher wir weitere Details aus Sicherheitsgründen erst auf Anfrage und bei näherem Interesse im Rahmen einer persönlichen Besichtigung präsentieren dürfen.
Energiedaten in Arbeit.
Imposant thront die Liegenschaft auf einem Hügel, umgeben von Landwirtschaft, eingebettet in die Kitzbüheler Alpen, aber trotzdem nahe zur Deutschen Grenze.
Das angebotene Objekt bietet dem zukünftigen Eigentümer eine vielseitige Nutzung und einige versteckte Details, die so kaum ein zweites Mal zu finden sind.
- Die unterirdische Schutzanlage ist für ca. 40 bis 50 Menschen geeignet, inklusive:
- 15 Schlaf-/Privaträume
- Weitere Aufenthalts, Lager und Betriebsräume
- Komfortable Ausstattung mit Luftfilteranlage, eigenem Strom-Generator, eigene Frischwasser-Quelle
- Tiefgarage mit bis zu 7 KfZ-Abstellplätze
- Der Erwerb einer Betriebs-GmbH, in welcher die Immobilie beinhaltet ist, ist möglich (Gästehaus, Bewirtschaftung).
Die derzeitige Planungsstudie, welche sich gerade in der Genehmigungsphase befindet, sieht einen Umbau und eine teilweise Erweiterung des Bestandes vor.
Vorgesehen sind drei luxuriöse Apartments und Seminarräumlichkeiten im Dachgeschoss. Die geschaffenen Räumlichkeiten bieten obendrein die Möglichkeit für eine gewerbliche Vermietung. Die Planung und in absehbarer Zeit die Baugenehmigung sind Bestandteil des Verkaufes.
Das Haus wird über eine hocheffiziente Pelletheizung beheizt und verfügt weiters über eine eigene Quelle am Grundstück.
Das Haus ist mit mehreren besonderen Features ausgestattet und unterhalb der Liegenschaft befindet sich eine einzigartige Sicherheitsanlage für bis zu 40 Personen, zu welcher wir weitere Details aus Sicherheitsgründen erst auf Anfrage und bei näherem Interesse im Rahmen einer persönlichen Besichtigung präsentieren dürfen.
Energiedaten in Arbeit.







































