Eckdaten
Fieberbrunn
269 m²
522 m²
4
4
ID:
MG-0002283
€ 450.000
Details
Kontakt
Roman Gobec
Tel: +43 676 726 26 76
Franz Gobec
Tel: +43 676 704 71 20
Markus Gobec
Tel: +43 676 721 36 60
Beschreibung
Zum Verkauf steht ein ca. 522 m² großes Baugrundstück in sonniger Lage auf einem Hochplateau oberhalb von Fieberbrunn in Richtung Hochfilzen.
Es liegen bereits rechtskräftige Baugenehmigungen zur Errichtung eines Doppelhauses oder eines Mehrfamilienhauses vor.
Bebauungsvarianten:
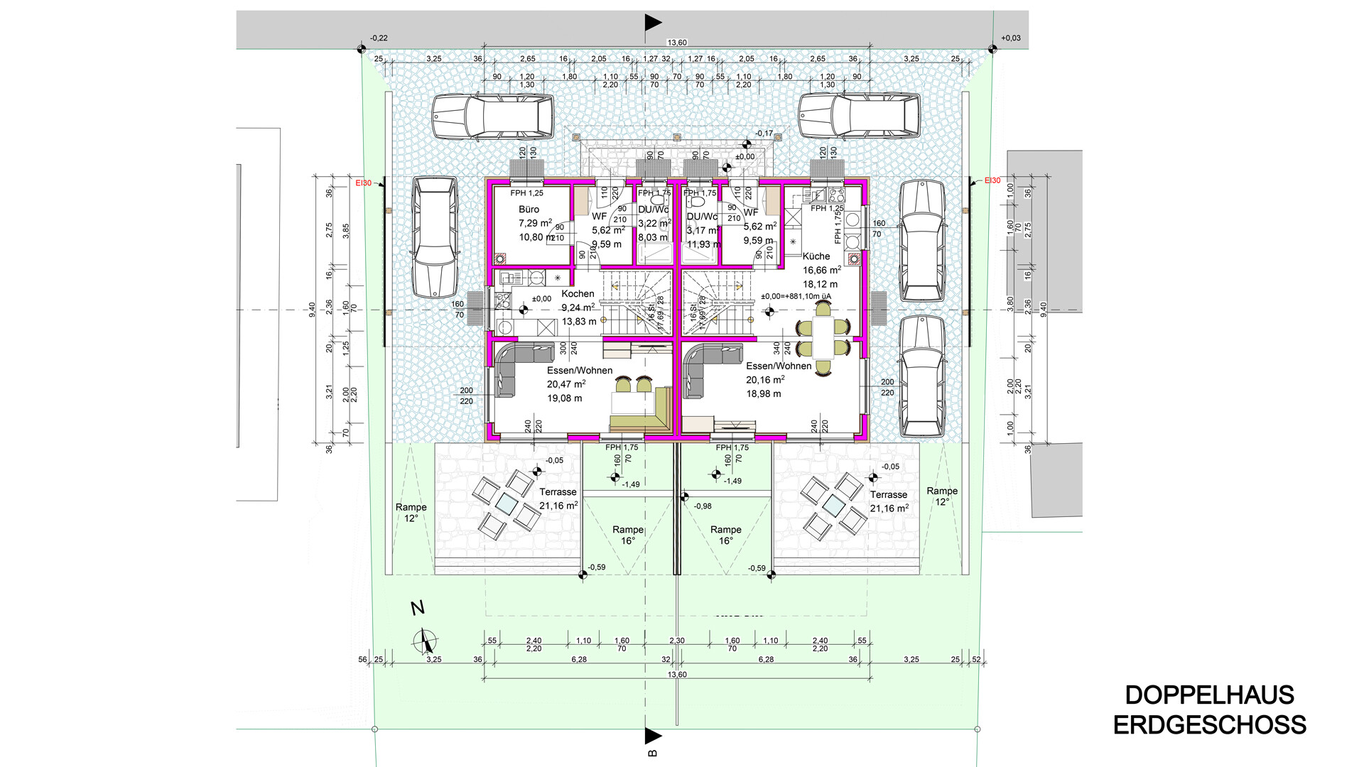
Variante 1: Doppelhaus
Wohn-/Nutzfläche gesamt ca. 271 m² inkl. Untergeschoss.
Doppelhaus 1 ca. 136 m² Wohn-/Nutzfläche (inkl. Untergeschoss), 3 Stellplätze, Grundstücksparzelle ca. 262 m²
Doppelhaus 2 ca. 135 m² Wohn-/Nutzfläche (inkl. Untergeschoss), 3 Stellplätze, Grundstücksparzelle ca. 260 m²
Baumasse oberirdisch 937.67 m3 | Baumassendichte 1.80
6 Stellplätze, teilweise überdacht. Heizung Luftwärmepumpe.
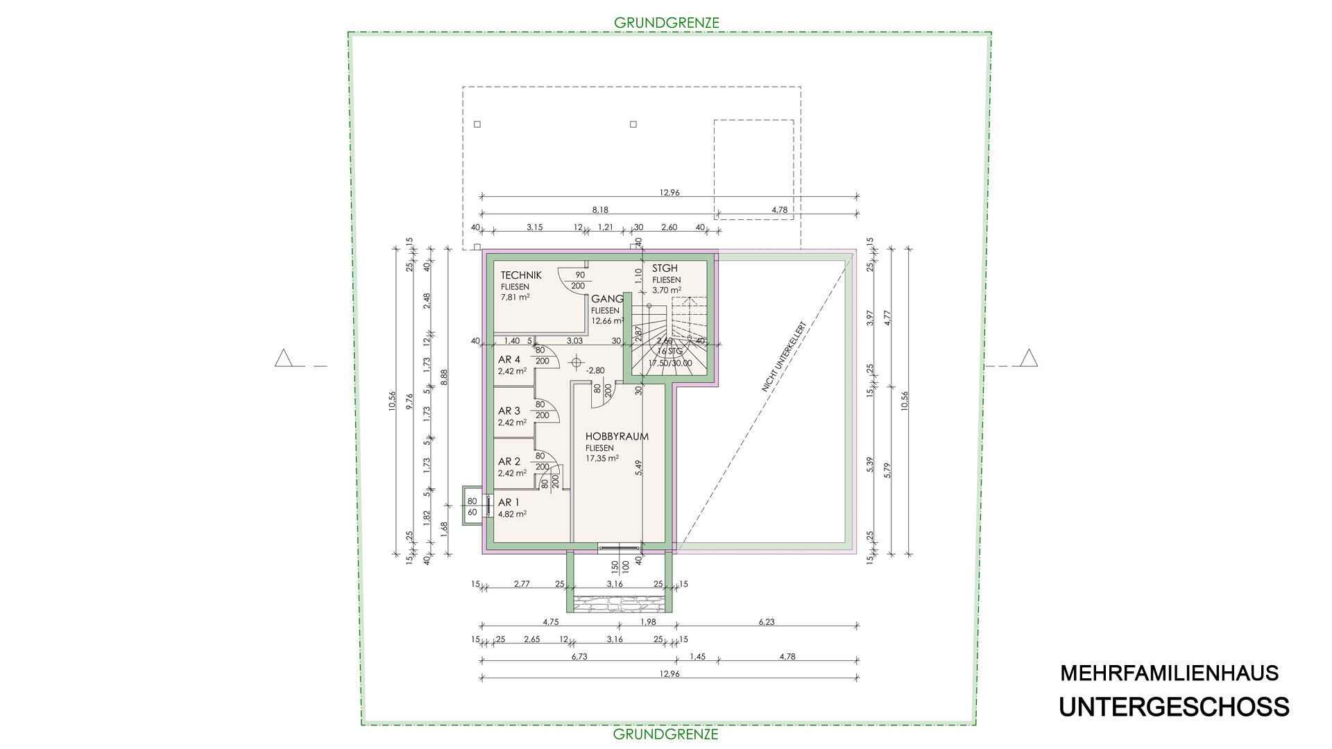
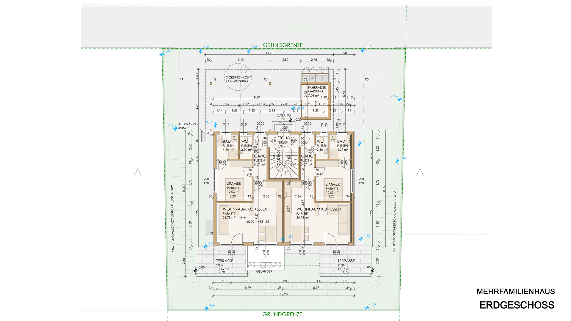
Variante 2: Mehrfamilienwohnhaus mit 4 Wohnungen
Wohn-/Nutzfläche gesamt ca. 269 m² inkl. Untergeschoss
4 Zwei-Zimmerwohnungen von je ca. 51 m² Wohnfläche
Gesamtwohnfläche ca. 202 m² (ohne Terrasse, Balkon, Keller und Hobbyraum)
Baumasse oberirdisch 930.47 m3 | Baumassendichte 1,78
5 Stellplätze, teilweise überdacht. Heizung Luftwärmepumpe.
Grunddaten:
- Bebauungsplan vorhanden
- Ein Altbestand ist nicht vorhanden. Es kann somit gleich mit dem Bau begonnen werden.
- Die Sparten (Strom, Gas und Wasser) sind direkt am Grundstück (Anliegerstraße) bereits vorhanden.
- Erschließungskosten bereits bezahlt
Es liegen bereits rechtskräftige Baugenehmigungen zur Errichtung eines Doppelhauses oder eines Mehrfamilienhauses vor.
Bebauungsvarianten:
Variante 1: Doppelhaus
Wohn-/Nutzfläche gesamt ca. 271 m² inkl. Untergeschoss.
Doppelhaus 1 ca. 136 m² Wohn-/Nutzfläche (inkl. Untergeschoss), 3 Stellplätze, Grundstücksparzelle ca. 262 m²
Doppelhaus 2 ca. 135 m² Wohn-/Nutzfläche (inkl. Untergeschoss), 3 Stellplätze, Grundstücksparzelle ca. 260 m²
Baumasse oberirdisch 937.67 m3 | Baumassendichte 1.80
6 Stellplätze, teilweise überdacht. Heizung Luftwärmepumpe.
Variante 2: Mehrfamilienwohnhaus mit 4 Wohnungen
Wohn-/Nutzfläche gesamt ca. 269 m² inkl. Untergeschoss
4 Zwei-Zimmerwohnungen von je ca. 51 m² Wohnfläche
Gesamtwohnfläche ca. 202 m² (ohne Terrasse, Balkon, Keller und Hobbyraum)
Baumasse oberirdisch 930.47 m3 | Baumassendichte 1,78
5 Stellplätze, teilweise überdacht. Heizung Luftwärmepumpe.
Grunddaten:
- Bebauungsplan vorhanden
- Ein Altbestand ist nicht vorhanden. Es kann somit gleich mit dem Bau begonnen werden.
- Die Sparten (Strom, Gas und Wasser) sind direkt am Grundstück (Anliegerstraße) bereits vorhanden.
- Erschließungskosten bereits bezahlt

































