Eckdaten
Ellmau
270 m²
18 m²
4
4
ID:
659/00906_6
Auf Anfrage
Details
- Baujahr: 2013
- Heizung: Fußboden (Gas)
- Stellplätze: 3
- Garten
- Kamin
- Sauna
- Wellnessbereich
Baujahr: 2013 /
Heizung: Fußboden (Gas) /
Stellplätze: 3 /
Garten /
Kamin /
Sauna /
Wellnessbereich /
Kontakt
Roman Gobec
Tel: +43 676 726 26 76
Franz Gobec
Tel: +43 676 704 71 20
Markus Gobec
Tel: +43 676 721 36 60
Beschreibung
Dieses Chalet liegt in absoluter Ruhelage oberhalb des Golfplatzes am Fuße des Kaisergebirges und bietet von der großen Dachterrasse einen fantastischen Ausblick auf die umliegende Bergwelt und den Ort.
Völlig ruhig am Waldrand gelegen, mit einem herrlichen Ausblick, verspricht das Objekt dem künftigen Besitzer ein absolutes Wohlfühlgefühl.
Mit einer Wohnnutzfläche von ca. 282 m² bietet es ausreichend Platz für eine mehrköpfige Familie und Gäste.
Das Haus teilt sich auf:
Aufgrund der Hanglage ist das Erdgeschoss eigentlich das Dachgeschoss, wo sich der Wohnbereich mit Kamin und Dachstuhluntersicht sowie die offene Küche mit angrenzendem Essbereich befinden.
Vom Wohnbereich gelangt man auf einen knapp 10 m² großen Balkon, eine weitere ca. 37 m² große Balkon-Terrasse ist vom Essbereich zugänglich.
Über einen eigenen Zugang kommt man auch von außen direkt in das oberste Geschoss.
1. Untergeschoss (eigentlich Erdgeschoss): Hier befindet sich der Haupteingang mit großzügiger Garderobe, mit hochwertigen Einbauschränken und einer Gäste-Toilette.
Weiters sind hier zwei Gästezimmer mit jeweils Badezimmer en Suite sowie der Masterbereich mit komfortablem Badezimmer situiert.
Ebenfalls auf dieser Ebene befindet sich der Wellnessbereich mit Ruheraum, Sauna, Dampfbad, Dusche und Toilette.
Eine großzügige und uneinsichtige Terrasse ist von den Schlafzimmern zugänglich.
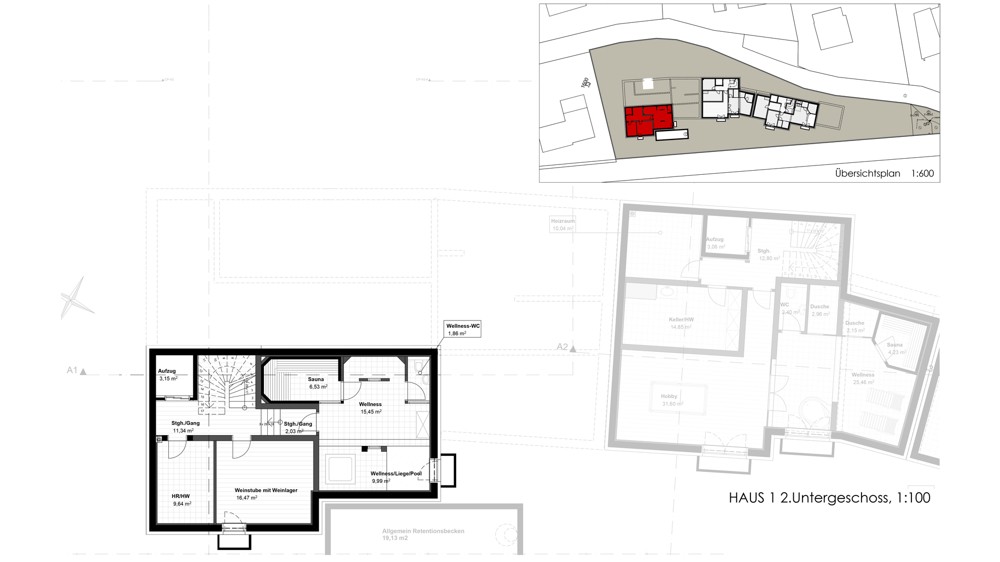
Im Untergeschoss des Chalets befindet sich ein weiteres Schlafzimmer, welches aber auch als zweiter Wellnessbereich genutzt werden kann, da sämtliche Anschlüsse für eine Sauna und ein Whirlpool vorhanden sind.
Ein weiterer, noch nicht eingerichteter Raum kann vom neuen Eigentümer individuell genutzt werden. So kann man hier zum Beispiel einen Hobbyraum, Weinkeller, Heimkino oder auch Gästezimmer einrichten.
Zudem befindet sich auf dieser Ebene der Technik- und Hauswirtschaftsraum.
Barrierefreiheit durch eingebauten Lift, modernste Heiz- und Lüftungstechnik, Zentralstaubsaugeranlage, hochwertige Ausstattung der Bäder, edle Eichenböden und vor allem ein großzügiger Wellnessbereich, bestätigen die Qualität des Chalets.
Energiedaten: HWB 40 – fGEE 0,86.
Sofort verfügbar.
Völlig ruhig am Waldrand gelegen, mit einem herrlichen Ausblick, verspricht das Objekt dem künftigen Besitzer ein absolutes Wohlfühlgefühl.
Mit einer Wohnnutzfläche von ca. 282 m² bietet es ausreichend Platz für eine mehrköpfige Familie und Gäste.
Das Haus teilt sich auf:
Aufgrund der Hanglage ist das Erdgeschoss eigentlich das Dachgeschoss, wo sich der Wohnbereich mit Kamin und Dachstuhluntersicht sowie die offene Küche mit angrenzendem Essbereich befinden.
Vom Wohnbereich gelangt man auf einen knapp 10 m² großen Balkon, eine weitere ca. 37 m² große Balkon-Terrasse ist vom Essbereich zugänglich.
Über einen eigenen Zugang kommt man auch von außen direkt in das oberste Geschoss.
1. Untergeschoss (eigentlich Erdgeschoss): Hier befindet sich der Haupteingang mit großzügiger Garderobe, mit hochwertigen Einbauschränken und einer Gäste-Toilette.
Weiters sind hier zwei Gästezimmer mit jeweils Badezimmer en Suite sowie der Masterbereich mit komfortablem Badezimmer situiert.
Ebenfalls auf dieser Ebene befindet sich der Wellnessbereich mit Ruheraum, Sauna, Dampfbad, Dusche und Toilette.
Eine großzügige und uneinsichtige Terrasse ist von den Schlafzimmern zugänglich.
Im Untergeschoss des Chalets befindet sich ein weiteres Schlafzimmer, welches aber auch als zweiter Wellnessbereich genutzt werden kann, da sämtliche Anschlüsse für eine Sauna und ein Whirlpool vorhanden sind.
Ein weiterer, noch nicht eingerichteter Raum kann vom neuen Eigentümer individuell genutzt werden. So kann man hier zum Beispiel einen Hobbyraum, Weinkeller, Heimkino oder auch Gästezimmer einrichten.
Zudem befindet sich auf dieser Ebene der Technik- und Hauswirtschaftsraum.
Barrierefreiheit durch eingebauten Lift, modernste Heiz- und Lüftungstechnik, Zentralstaubsaugeranlage, hochwertige Ausstattung der Bäder, edle Eichenböden und vor allem ein großzügiger Wellnessbereich, bestätigen die Qualität des Chalets.
Energiedaten: HWB 40 – fGEE 0,86.
Sofort verfügbar.

























































