Eckdaten
Hopfgarten
264 m²
1.731 m²
3
2
ID:
MG-0002438
€ 1.350.000
Details
- Heizung: Ofen (Holz)
- Heizung: Zentral
- Kamin
Heizung: Ofen /
Heizung: Zentral /
Kamin /
Kontakt
Roman Gobec
Tel: +43 676 726 26 76
Franz Gobec
Tel: +43 676 704 71 20
Markus Gobec
Tel: +43 676 721 36 60
Beschreibung
Hier bietet sich eine wahrhaft einmalige Gelegenheit!
Zum Verkauf steht diese einzigartige Liegenschaft mitten im Skigebiet in idyllischer Lage in den Kitzbüheler Alpen.
Auf 1.200 m Seehöhe in Alleinlage, knapp über der Mittelstation, befindet sich das Gebäude samt Nebengebäuden. Umringt vom Altbaumbestand, bietet Ihnen dieses Objekt ein einzigartiges Ambiente. Auf Wunsch kann der Verkäufer die Bäume fällen.
Im Sommer gelangen Sie bequem mit dem Auto direkt zum Objekt. Im Winter muss das Auto wenige Minuten vor dem Objekt abgestellt werden und das letzte Stück ist mit einem Ski-doo leicht zu befahren. Oder man fährt mit der Gondelbahn bis zur Mittelstation und geht dann die paar Meter zu Fuß zum Objekt.
Das Grundstück bietet Ihnen eine Fläche von ca. 1.731 m², worauf sich sämtliche Gebäude befinden. Die Gebäude eine Gesamtnutzfläche von ca. 264 m².
Das Haus kann nach kleineren Renovierungsarbeiten sofort bewohnt werden und befindet sich in einem dem Alter angemessenen guten Zustand.
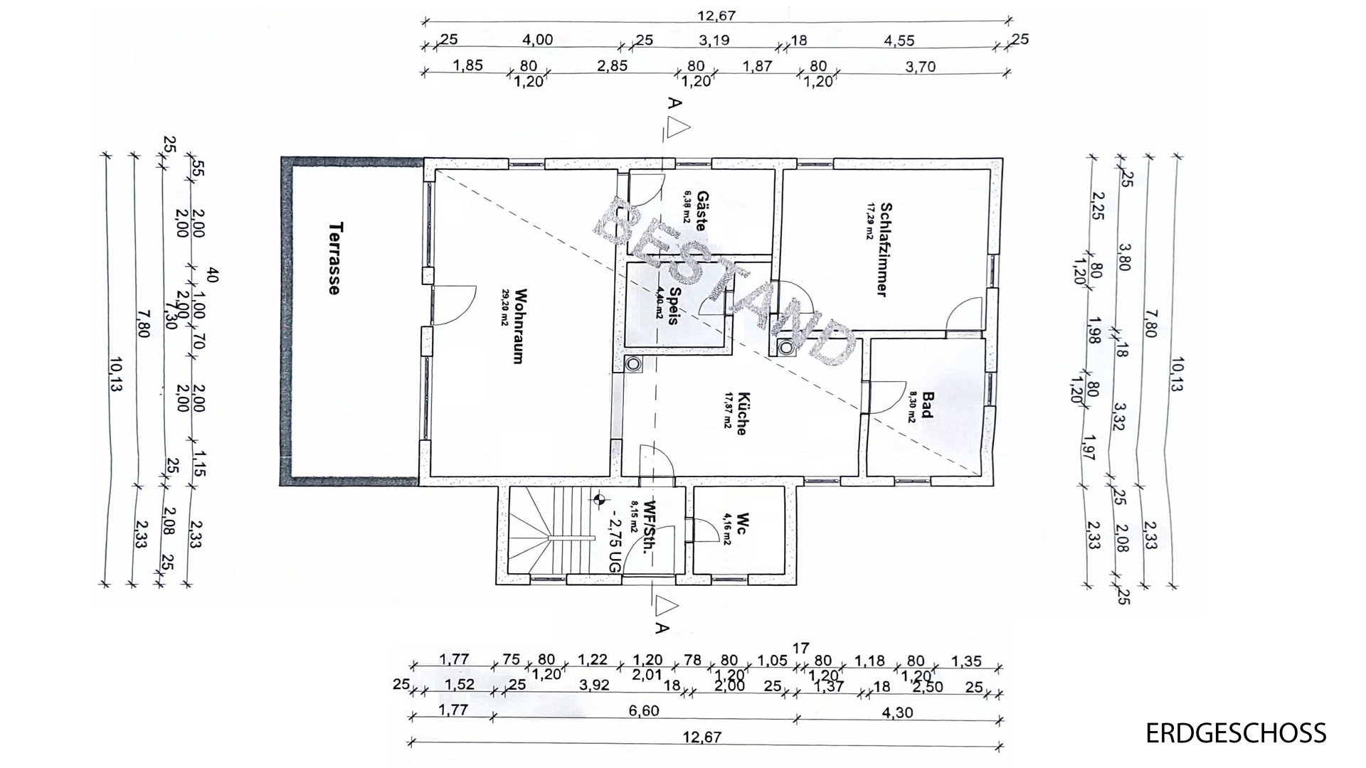
Insgesamt besteht das Haupthaus aus zwei Geschossen. Im Obergeschoss befindet sich der Wohnbereich mit Kachelofen und sehr großer Sonnenterrasse, die Küche, zwei Schlafzimmer und ein Badezimmer.
Im Untergeschoss sind ein weiterer Wohnraum/Partykeller sowie eine Werkstatt, Nebenräume und der Technikraum situiert.
Eine Holzheizung ist vorhanden.
3 weitere Holzschuppen, welche man als Holzlager, Carport und Ski- sowie Mountainbike-Unterstand verwenden kann, sind ebenfalls am Grundstück.
Insgesamt eine einmalige Rarität inmitten der Berge. Ruhe, Entspannung & Sonne ist garantiert.
Energiedaten in Arbeit.
Sofort verfügbar.
Zum Verkauf steht diese einzigartige Liegenschaft mitten im Skigebiet in idyllischer Lage in den Kitzbüheler Alpen.
Auf 1.200 m Seehöhe in Alleinlage, knapp über der Mittelstation, befindet sich das Gebäude samt Nebengebäuden. Umringt vom Altbaumbestand, bietet Ihnen dieses Objekt ein einzigartiges Ambiente. Auf Wunsch kann der Verkäufer die Bäume fällen.
Im Sommer gelangen Sie bequem mit dem Auto direkt zum Objekt. Im Winter muss das Auto wenige Minuten vor dem Objekt abgestellt werden und das letzte Stück ist mit einem Ski-doo leicht zu befahren. Oder man fährt mit der Gondelbahn bis zur Mittelstation und geht dann die paar Meter zu Fuß zum Objekt.
Das Grundstück bietet Ihnen eine Fläche von ca. 1.731 m², worauf sich sämtliche Gebäude befinden. Die Gebäude eine Gesamtnutzfläche von ca. 264 m².
Das Haus kann nach kleineren Renovierungsarbeiten sofort bewohnt werden und befindet sich in einem dem Alter angemessenen guten Zustand.
Insgesamt besteht das Haupthaus aus zwei Geschossen. Im Obergeschoss befindet sich der Wohnbereich mit Kachelofen und sehr großer Sonnenterrasse, die Küche, zwei Schlafzimmer und ein Badezimmer.
Im Untergeschoss sind ein weiterer Wohnraum/Partykeller sowie eine Werkstatt, Nebenräume und der Technikraum situiert.
Eine Holzheizung ist vorhanden.
3 weitere Holzschuppen, welche man als Holzlager, Carport und Ski- sowie Mountainbike-Unterstand verwenden kann, sind ebenfalls am Grundstück.
Insgesamt eine einmalige Rarität inmitten der Berge. Ruhe, Entspannung & Sonne ist garantiert.
Energiedaten in Arbeit.
Sofort verfügbar.

























































