Eckdaten
Kitzbühel
93 m²
87 m²
22 m²
ID:
RG-0002338
€ 880.000
Details
- Heizung: Ofen (Holz)
- Stellplätze: 1
- Garten
- Kamin
Heizung: Ofen (Holz) /
Stellplätze: 1 /
Garten /
Kamin /
Kontakt
Roman Gobec
Tel: +43 676 726 26 76
Franz Gobec
Tel: +43 676 704 71 20
Markus Gobec
Tel: +43 676 721 36 60
Beschreibung
Zum Verkauf steht ein Baugrundstück mit Altbestand in Form eines Knappenhauses in zentraler Ruhelage von Kitzbühel.
Das Stadtzentrum und sämtliche Einkaufsmöglichkeiten, aber auch Restaurants sind fußläufig in wenigen Minuten erreichbar.
Das auf dem Grundstück befindliche Haus, ist zwar grundsätzlich renovierungsfähig, jedoch wäre ein Neubau mit Aufstockung lukrativer.
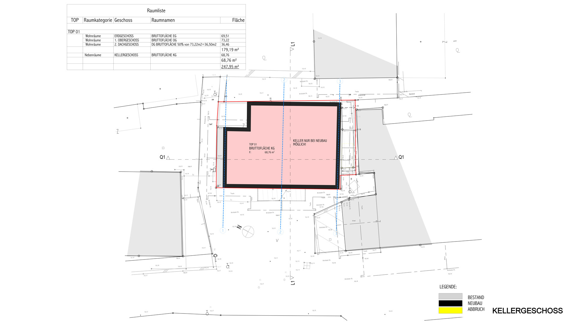
Das Bestandsobjekt weist derzeit auf 2 Geschossen eine Nutzfläche von ca. 93 m² auf.
Bei Abriss könnte der Neubau komplett unterkellert und um 1 weiteres Geschoss aufgestockt werden (insgesamt 4 Etagen und eine Gesamtfläche von ca. 248 m²). Die Gespräche mit der Baubehörde laufen und eine Planstudie liegt bereits vor.
Die zentrale fußläufige Ruhelage, der Blick auf den Hahnenkamm und die Möglichkeiten des Neubaues, rechtfertigen den Kaufpreis.
Sofort verfügbar.
Das Stadtzentrum und sämtliche Einkaufsmöglichkeiten, aber auch Restaurants sind fußläufig in wenigen Minuten erreichbar.
Das auf dem Grundstück befindliche Haus, ist zwar grundsätzlich renovierungsfähig, jedoch wäre ein Neubau mit Aufstockung lukrativer.
Das Bestandsobjekt weist derzeit auf 2 Geschossen eine Nutzfläche von ca. 93 m² auf.
Bei Abriss könnte der Neubau komplett unterkellert und um 1 weiteres Geschoss aufgestockt werden (insgesamt 4 Etagen und eine Gesamtfläche von ca. 248 m²). Die Gespräche mit der Baubehörde laufen und eine Planstudie liegt bereits vor.
Die zentrale fußläufige Ruhelage, der Blick auf den Hahnenkamm und die Möglichkeiten des Neubaues, rechtfertigen den Kaufpreis.
Sofort verfügbar.





















