Eckdaten
Kitzbühel
48 m²
1
ID:
MG-0002409
€ 395.000
Details
- Baujahr: 1964
- Heizung: Zentral (Gas)
- Stellplätze: 1
Baujahr: 1964 /
Heizung: Zentral (Gas) /
Stellplätze: 1 /
Kontakt
Roman Gobec
Tel: +43 676 726 26 76
Franz Gobec
Tel: +43 676 704 71 20
Markus Gobec
Tel: +43 676 721 36 60
Beschreibung
Zum Verkauf steht eine knapp 50 m² große Dachgeschosswohnung, welche nur ca. 300 Meter von der Kitzbüheler Fußgängerzone entfernt gelegen ist.
Die Wohnung bietet einen fantastischen Panorama-Ausblick auf das Kitzbüheler Horn, die Bichlalm bis hin zu den Südbergen.
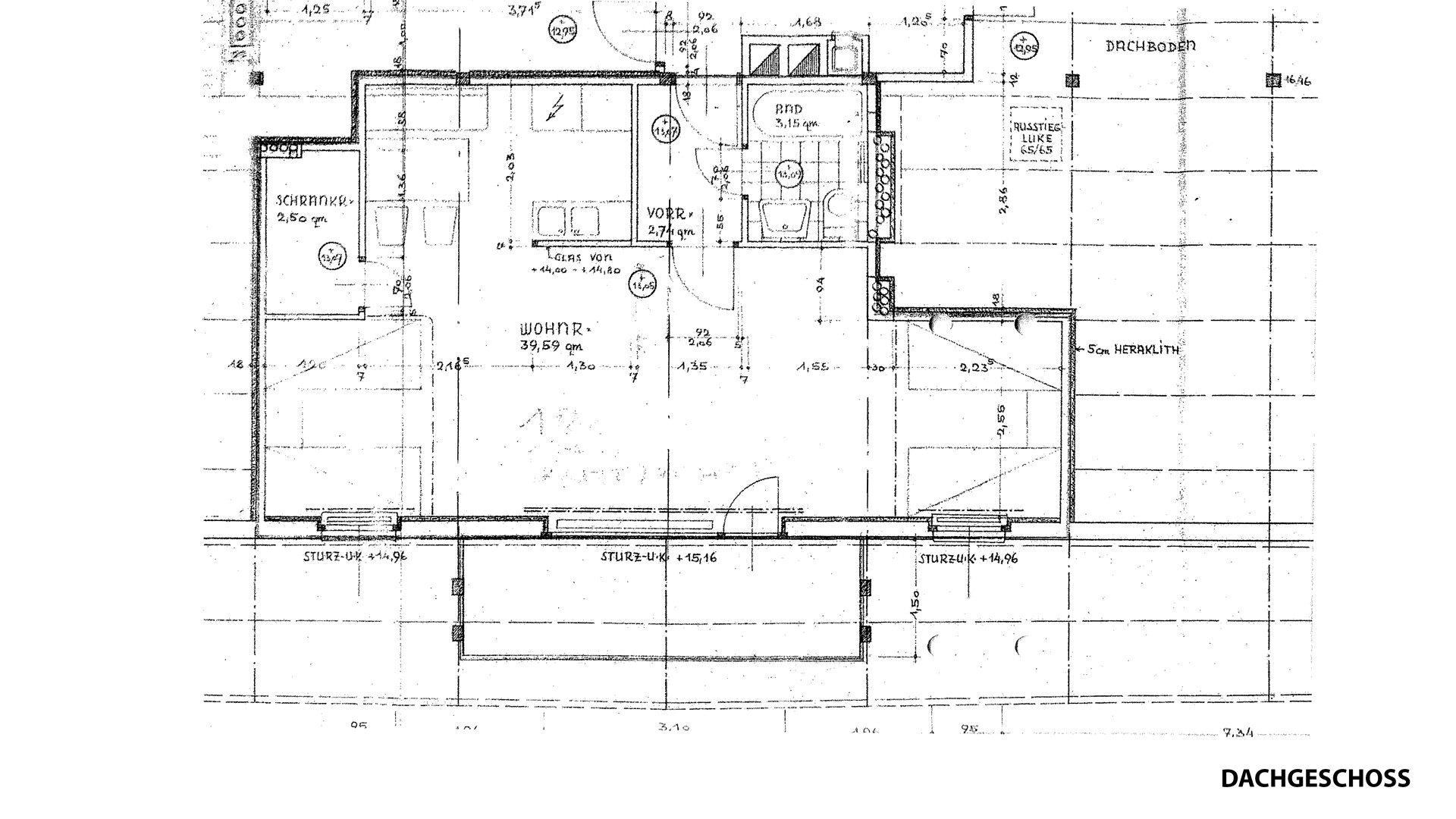
Derzeit besteht die Wohnung aus einem Vorraum/Garderobe, ein Badezimmer mit Badewanne, Toilette und Waschtisch sowie einem großen Raum mit Küche, Essbereich, Wohnbereich und mit Vorhang abgetrennter Schlafkoje.
Dieser ca. 40 m² große Raum, komplett mit Holzboden ausgestattet, kann aber mit geringem Aufwand so aufgeteilt werden, dass ein eigenständiges Schlafzimmer mit Fenster entsteht. Siehe Entwurfsplan.
Vom Wohnraum gelangt man auf einen Richtung-Osten ausgerichteten, knapp 8 m² großen und komplett überdachten Balkon.
Unsere Einrichtungsbeispiele zeigen sehr schön, welches Potenzial die Wohnung bietet.
Zur Wohnung gehört ein Kellerabteil. Ein Garagenstellplatz direkt im Haus kann um 15.000 € erworben werden.
Die Wohnung ist im Dachgeschoss (5. Etage) ohne Personenlift gelegen.
In dem Haus befinden sich ca. 57 Wohnungen, teils sehr kleine Garçonnière.
Energiedaten: HWB 123 Klasse D, gültig bis 24.08.2023.
Sofort verfügbar.
Die Wohnung bietet einen fantastischen Panorama-Ausblick auf das Kitzbüheler Horn, die Bichlalm bis hin zu den Südbergen.
Derzeit besteht die Wohnung aus einem Vorraum/Garderobe, ein Badezimmer mit Badewanne, Toilette und Waschtisch sowie einem großen Raum mit Küche, Essbereich, Wohnbereich und mit Vorhang abgetrennter Schlafkoje.
Dieser ca. 40 m² große Raum, komplett mit Holzboden ausgestattet, kann aber mit geringem Aufwand so aufgeteilt werden, dass ein eigenständiges Schlafzimmer mit Fenster entsteht. Siehe Entwurfsplan.
Vom Wohnraum gelangt man auf einen Richtung-Osten ausgerichteten, knapp 8 m² großen und komplett überdachten Balkon.
Unsere Einrichtungsbeispiele zeigen sehr schön, welches Potenzial die Wohnung bietet.
Zur Wohnung gehört ein Kellerabteil. Ein Garagenstellplatz direkt im Haus kann um 15.000 € erworben werden.
Die Wohnung ist im Dachgeschoss (5. Etage) ohne Personenlift gelegen.
In dem Haus befinden sich ca. 57 Wohnungen, teils sehr kleine Garçonnière.
Energiedaten: HWB 123 Klasse D, gültig bis 24.08.2023.
Sofort verfügbar.



































