Eckdaten
Ellmau
626 m²
861 m²
239 m²
8
8
ID:
RG-0002553
€ 3.200.000
Details
- Heizung: Fußboden (Luftwärmepumpe)
- Stellplätze: 8
- Garten
- Kamin
- Sauna
- Fitnessraum
- Wellnessbereich
Heizung: Fußboden (Luftwärmepumpe) /
Stellplätze: 8 /
Garten /
Kamin /
Sauna /
Fitnessraum /
Wellnessbereich /
Kontakt
Roman Gobec
Tel: +43 676 726 26 76
Franz Gobec
Tel: +43 676 704 71 20
Markus Gobec
Tel: +43 676 721 36 60
Beschreibung
Zum Verkauf steht ein Baugrundstück mit Altbestand in leicht erhöhter Lage mit traumhaftem Ausblick auf den Wilden Kaiser in Ellmau.
Es liegt bereits eine rechtskräftige Baugenehmigung für zwei Luxusvillen und ein Abbruchbescheid für den Altbestand vor.
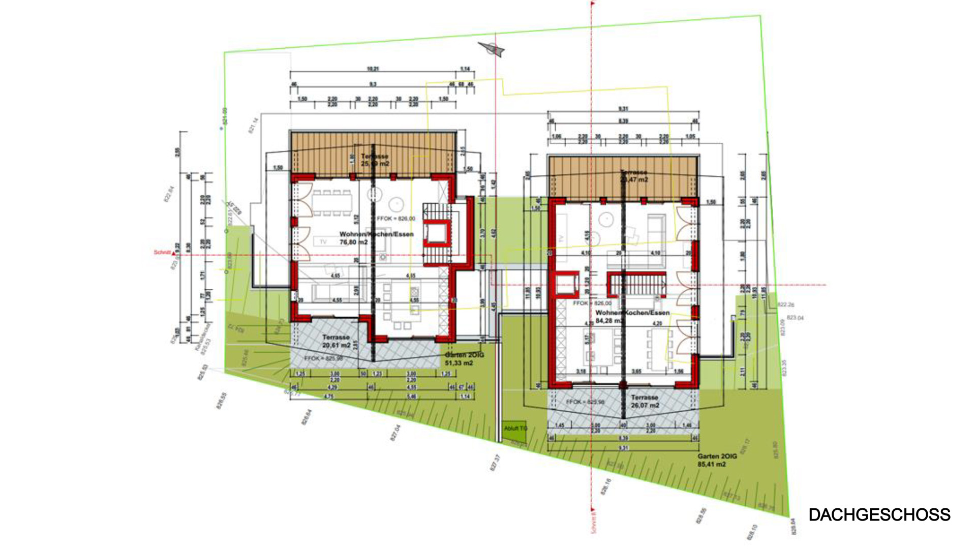
Villa 1 bietet auf 3 Etagen, verbunden über einen Lift, eine Wohn-/Nutzfläche von 314,87 m².
Drei Schlafzimmer, drei Bäder, ein Büro, einen großen Wellnessbereich mit Sauna sowie einen ca. 85 m² großen Wohn-Essbereich im Dachgeschoss.
Villa 2 bietet auf 3 Etagen, verbunden über einen Lift eine Wohn-/Nutzfläche von 311,41 m².
Drei Schlafzimmer, drei Bäder, einen großen Wellnessbereich mit Sauna sowie einen ca. 85 m² großen Wohn-Essbereich im Dachgeschoss.
Beide Villen verfügen über mehrere großzügige Terrassen und Balkone sowie Gartenflächen. Aufgrund der Hanglage hat man selbst in der unteren Etage Tageslicht und einen schönen Ausblick sowie im Dachgeschoss nach hinten einen Garten und nach vorne eine große Terrasse.
Beiden Villen stehen in der 179,07 m² großen Garage jeweils 3 Parkplätze zur Verfügung sowie ein Außenstellplatz pro Haus.
Mehrere Keller und Lagerräume sind ebenfalls vorhanden.
Verkauft wird das Baugrundstück mit Altbestand inklusive Baugenehmigung für den Neubau.
Dem neuen Eigentümer steht es frei, die Raumaufteilung bei Bedarf noch abzuändern.
Folgendes ist ebenfalls bereits erledigt:
• Oberflächenwasserprojekt
• Bodengutachten / Baugrubensicherung
• Baustelleneinrichtungsplan
• Nachbarvereinbarung wegen Hangsicherung / Hangverbau.
Der Erwerb wäre über einen Sharedeal als auch über einen Assetdeal möglich. Der Kaufpreis bei einem Sharedeal beläuft sich auf € 3,2 Mio. und bei einem Assetdeal auf € 3,6 Mio.
Der Skilift befindet sich nur ca. 400 Meter entfernt.
Das Ortszentrum sowie der Golfplatz von Ellmau ist bequem in ca. 10 bis 15 Fußminuten erreichbar.
Zahlreiche Wander- und Radwege beginnen ebenfalls in unmittelbarer Nähe.
Alles in allem ein sehr interessantes Projekt, sowohl für einen Bauträger als auch für eine Privatperson oder für einen Investor.
Es liegt bereits eine rechtskräftige Baugenehmigung für zwei Luxusvillen und ein Abbruchbescheid für den Altbestand vor.
Villa 1 bietet auf 3 Etagen, verbunden über einen Lift, eine Wohn-/Nutzfläche von 314,87 m².
Drei Schlafzimmer, drei Bäder, ein Büro, einen großen Wellnessbereich mit Sauna sowie einen ca. 85 m² großen Wohn-Essbereich im Dachgeschoss.
Villa 2 bietet auf 3 Etagen, verbunden über einen Lift eine Wohn-/Nutzfläche von 311,41 m².
Drei Schlafzimmer, drei Bäder, einen großen Wellnessbereich mit Sauna sowie einen ca. 85 m² großen Wohn-Essbereich im Dachgeschoss.
Beide Villen verfügen über mehrere großzügige Terrassen und Balkone sowie Gartenflächen. Aufgrund der Hanglage hat man selbst in der unteren Etage Tageslicht und einen schönen Ausblick sowie im Dachgeschoss nach hinten einen Garten und nach vorne eine große Terrasse.
Beiden Villen stehen in der 179,07 m² großen Garage jeweils 3 Parkplätze zur Verfügung sowie ein Außenstellplatz pro Haus.
Mehrere Keller und Lagerräume sind ebenfalls vorhanden.
Verkauft wird das Baugrundstück mit Altbestand inklusive Baugenehmigung für den Neubau.
Dem neuen Eigentümer steht es frei, die Raumaufteilung bei Bedarf noch abzuändern.
Folgendes ist ebenfalls bereits erledigt:
• Oberflächenwasserprojekt
• Bodengutachten / Baugrubensicherung
• Baustelleneinrichtungsplan
• Nachbarvereinbarung wegen Hangsicherung / Hangverbau.
Der Erwerb wäre über einen Sharedeal als auch über einen Assetdeal möglich. Der Kaufpreis bei einem Sharedeal beläuft sich auf € 3,2 Mio. und bei einem Assetdeal auf € 3,6 Mio.
Der Skilift befindet sich nur ca. 400 Meter entfernt.
Das Ortszentrum sowie der Golfplatz von Ellmau ist bequem in ca. 10 bis 15 Fußminuten erreichbar.
Zahlreiche Wander- und Radwege beginnen ebenfalls in unmittelbarer Nähe.
Alles in allem ein sehr interessantes Projekt, sowohl für einen Bauträger als auch für eine Privatperson oder für einen Investor.

































